Porzione di Villa anni '20 con ampio Giardino a Quercianella
QUERCIANELLA - Nostra Esclusiva
In una delle località più esclusive e riservate della Costa Etrusca, a poca distanza dal mare,
proponiamo porzione di bellissima Villa d'epoca anni '20 libera su quattro lati, con doppio
ingresso indipendente e ampio Giardino esclusivo.
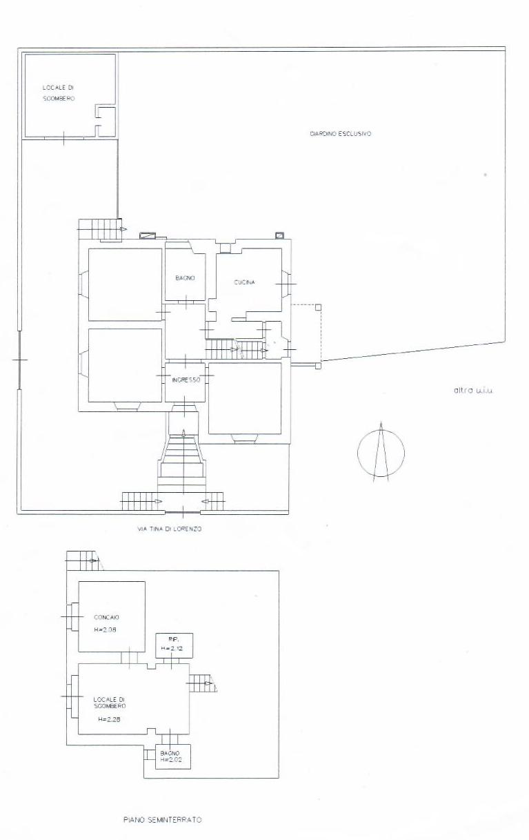
L' appartamento si compone di ingresso, sala con 2 finestre, cucina abitabile, 3 ampie camere matrimoniali, doppi servizi entrambi finestrati, ripostiglio, e altro vano accessorio pluriuso.
Grazie alla disposizione dei vani su due livelli e ai due ingressi indipendenti è possibile ricavare un piccolo appartamento autonomo da utilizzare come dépendance o per breve locazione.
L'immobile, molto particolare, con bellissimi pavimenti d'epoca originali, si presenta in ottimo stato di manutenzione. ed è di difficile reperibilità sul mercato attuale. Tutta la casa viene riscaldata in autonomia con caldaia ed è provvista di condizionatori installati recentemente.
Il Giardino di 340 mq, perimetrale all'immobile, si apre generosamente sul retro ed è ottimamente soleggiato e riservato, perfetto per godersi momenti di relax o di festa con gli amici.
Completa la proprietà ampio locale di sgombero uso magazzino, con caratteristico forno a legna.
L'immobile presenta anche un ampio accesso laterale su strada, per poter introdurre auto o motocicli, pur rimanendo in una strada con facilità di parcheggio.
La villa è immersa in un contesto verde a poca distanza dal mare, e dal porticciolo di Chioma che offre opportunità di noleggio gommoni e corsi di sub.
Questo immobile è perfetto anche per ospitare amici e parenti rispettandone la privacy grazie alla possibilità di creare spazi indipendenti,
oppure l'immobile o parte di esso, può essere trasformato in una fonte di reddito
In una delle località più esclusive e riservate della Costa Etrusca, a poca distanza dal mare,
proponiamo porzione di bellissima Villa d'epoca anni '20 libera su quattro lati, con doppio
ingresso indipendente e ampio Giardino esclusivo.
L' appartamento si compone di ingresso, sala con 2 finestre, cucina abitabile, 3 ampie camere matrimoniali, doppi servizi entrambi finestrati, ripostiglio, e altro vano accessorio pluriuso.
Grazie alla disposizione dei vani su due livelli e ai due ingressi indipendenti è possibile ricavare un piccolo appartamento autonomo da utilizzare come dépendance o per breve locazione.
L'immobile, molto particolare, con bellissimi pavimenti d'epoca originali, si presenta in ottimo stato di manutenzione. ed è di difficile reperibilità sul mercato attuale. Tutta la casa viene riscaldata in autonomia con caldaia ed è provvista di condizionatori installati recentemente.
Il Giardino di 340 mq, perimetrale all'immobile, si apre generosamente sul retro ed è ottimamente soleggiato e riservato, perfetto per godersi momenti di relax o di festa con gli amici.
Completa la proprietà ampio locale di sgombero uso magazzino, con caratteristico forno a legna.
L'immobile presenta anche un ampio accesso laterale su strada, per poter introdurre auto o motocicli, pur rimanendo in una strada con facilità di parcheggio.
La villa è immersa in un contesto verde a poca distanza dal mare, e dal porticciolo di Chioma che offre opportunità di noleggio gommoni e corsi di sub.
Questo immobile è perfetto anche per ospitare amici e parenti rispettandone la privacy grazie alla possibilità di creare spazi indipendenti,
oppure l'immobile o parte di esso, può essere trasformato in una fonte di reddito
attraverso soluzioni come il bed & breakfast o affitti vacanze, grazie alla sua straordinaria posizione!
Questo immobile è perfetto anche per ospitare amici e parenti rispettandone la privacy grazie alla possibilità di creare spazi indipendenti,
oppure l'immobile o parte di esso, può essere trasformato in una fonte di reddito attraverso soluzioni come il bed & breakfast o affitti vacanze, grazie alla sua straordinaria posizione!
Vivere qui è vivere la bellezza della Toscana con il lusso del mare a portata di mano!
Chiamaci ora per avere maggiori informazioni e fissare una visita.
Vivere qui è vivere la bellezza della Toscana con il lusso del mare a portata di mano!
Chiamaci ora per avere maggiori informazioni e fissare una visita.
€ 498.000,00
No Condominio
| Pubblicato il | 20-03-2025 |
|---|---|
| Riferimento | 982 |
| Tipologia | appartamento |
| Stato immobile | buone condizioni |
| Tipo di contratto | VENDITA |
|---|---|
| Prezzo | € 498.000,00 |
| note prezzo | No Condominio |
| Provincia | Livorno |
|---|---|
| Regione | Toscana |
| Stato | Italy |
| Classe energetica | G ipe 351,77 |
|---|---|
| m² | 189 |
| Vani | N. 7 |
| Camere | N. 3 / Camere matrimoniali |
| Servizi | N. 2 / Con Finestra |
| Cantine | N. 1 / Ampio Locale di Sgombero nel Giardino con caratteristico forno a legna. |
| N. Piani | T° Rialzato |
|---|---|
| Ingresso indipendente | Doppio Ingresso indipendente |
| Riscaldamento | Termo Autonomo |
|---|---|
| Condizionamento | Climatizzatori installati nel 2024 |
| Spese condominiali | Nessuna spesa condominiale |
|---|---|
| Libero | Libero al Rogito |
| Giardini | m² 340 / Ampio Giardino perimetrale |
|---|
Documenti allegati
Dimensione: 48,71 KB
Per avere ulteriori informazioni su questo annuncio è sufficiente inserire i dati richiesti nel form sottostante e premere "Invia Richiesta"
I campi in grassetto sono obbligatori.






Planimetria
